服務流程
  • 網頁預約

    免費量尺

  • 上門量房

    設計方案

  • 到門店看方案

    簽訂合同

  • 準備材料

    進場施工

預約免費量房

您當前的位置:

設計師圖片

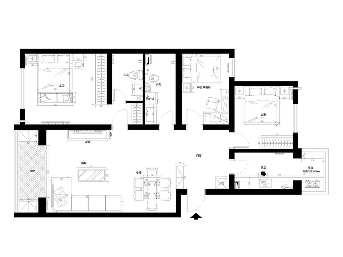
望泉家園銀泉苑

孫鑫設計師

戶型: 三居

風格: 現代簡約

麵積: 126.0㎡

介紹:

本(ben)設(she)計(ji)作(zuo)品(pin)為(wei)現(xian)代(dai)簡(jian)約(yue)風(feng)格(ge),簡(jian)潔(jie)明(ming)快(kuai)大(da)氣(qi),客(ke)廳(ting)沙(sha)發(fa)牆(qiang)造(zao)型(xing)是(shi)時(shi)尚(shang)壁(bi)紙(zhi)裝(zhuang)飾(shi),掛(gua)畫(hua)配(pei)飾(shi)及(ji)為(wei)簡(jian)潔(jie),然(ran)而(er)體(ti)現(xian)脫(tuo)俗(su)。吊(diao)頂(ding)簡(jian)潔(jie)大(da)氣(qi),時(shi)尚(shang)的(de)家(jia)具(ju)搭(da)配(pei)把(ba)現(xian)代(dai)風(feng)格(ge)體(ti)現(xian)非(fei)常(chang)完(wan)美(mei),給(gei)人(ren)感(gan)覺(jiao)空(kong)間(jian)合(he)理(li)統(tong)一(yi)。

算算這樣裝修需要多少錢?

有參考,花錢更有譜

立即計算

01

02

03

04

新用戶專享優惠

立即兌換