服務流程
  • 網頁預約

    免費量尺

  • 上門量房

    設計方案

  • 到門店看方案

    簽訂合同

  • 準備材料

    進場施工

預約免費量房

您當前的位置:

設計師圖片

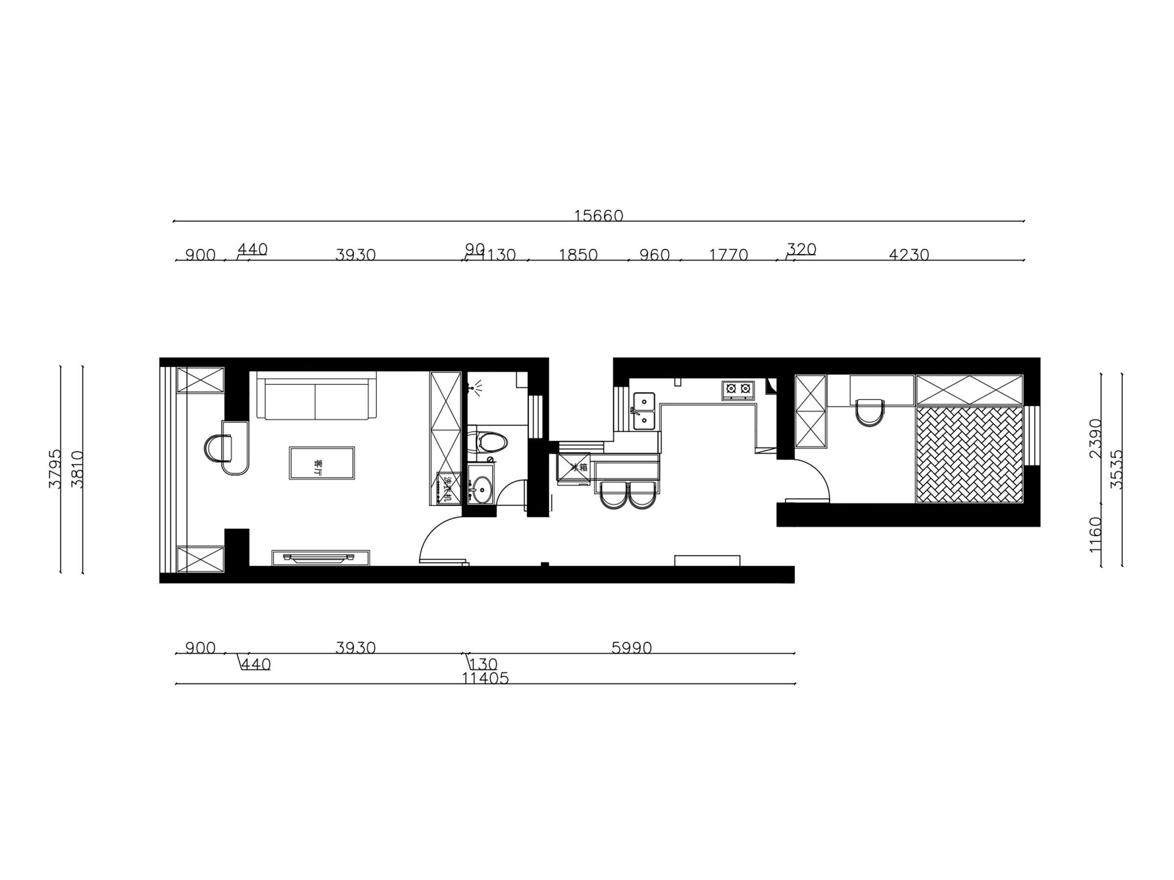
蒲黃榆5巷

尚雅設計師

戶型: 二居

風格: 北歐

麵積: 69.0㎡

介紹:

新婚夫妻,向往全新的生活。整體明亮歡快的顏色。體現新婚夫妻的熱情和麵對未來積極向上的態度。

算算這樣裝修需要多少錢?

有參考,花錢更有譜

立即計算

01

02

03

04

05

新用戶專享優惠

立即兌換