網頁預約
免費量尺
上門量房
設計方案
到門店看方案
簽訂合同
準備材料
進場施工
您當前的位置:
王景肖設計師
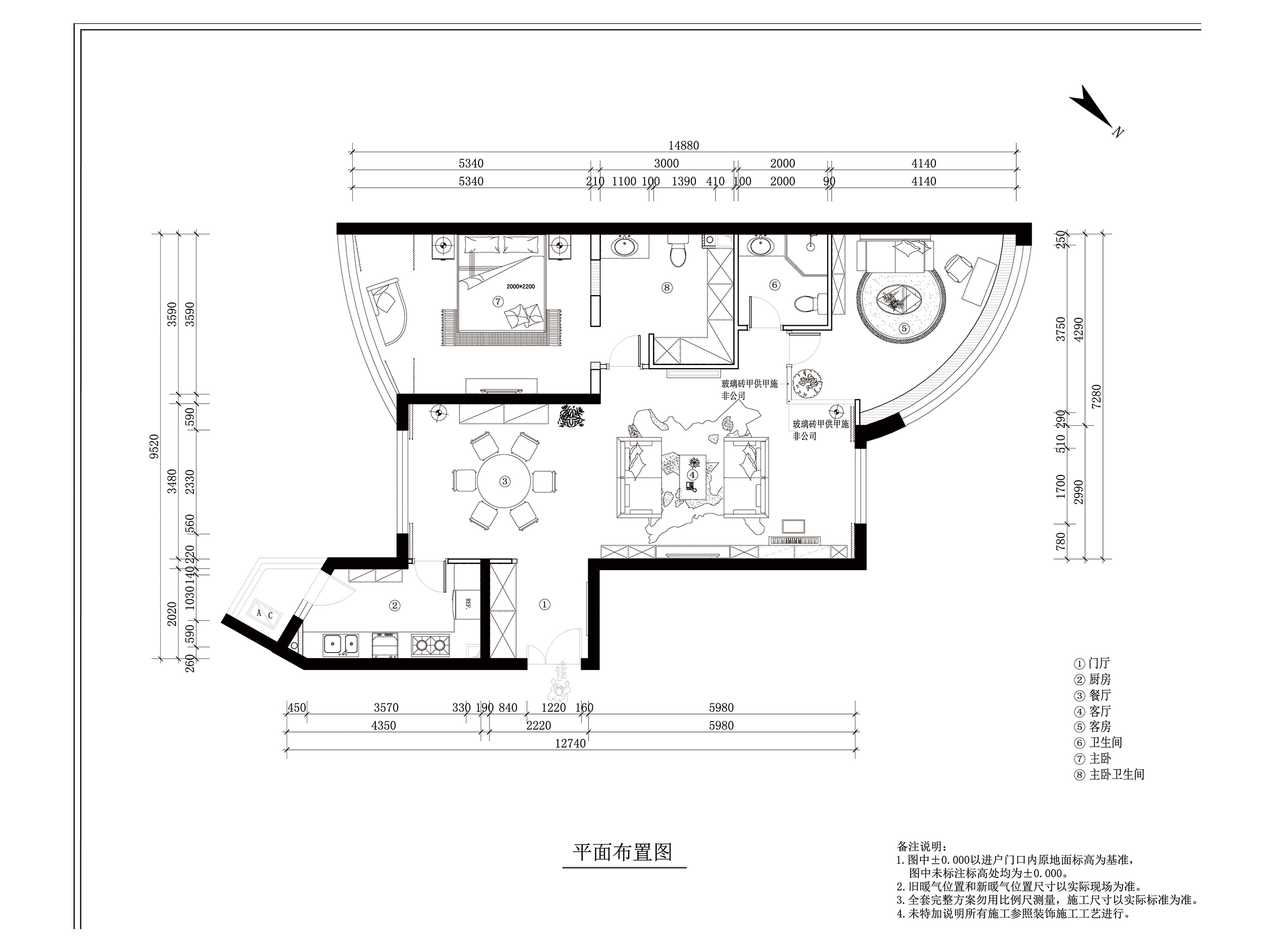
戶型: 三居
風格: 現代簡約
麵積: 102.0㎡
介紹:
兼備豪華、優雅、和諧、舒適、浪lang漫man的de特te點dian,更geng貼tie近jin於yu自zi然ran的de裝zhuang修xiu風feng格ge迎ying合he了le現xian在zai年nian輕qing人ren的de喜xi愛ai,現xian在zai都dou市shi的de忙mang碌lu生sheng活huo,早zao已yi經jing讓rang我wo們men煩fan膩ni了le花hua天tian酒jiu地di,燈deng紅hong酒jiu綠lv,我wo們men更geng喜xi歡huan的de一yi個ge安an靜jing,祥xiang和he,看kan上shang去qu明ming朗lang寬kuan敞chang舒shu適shi的de家jia,來lai消xiao除chu工gong作zuo的de疲pi憊bei,忘wang卻que都dou市shi的de喧xuan鬧nao。
算算這樣裝修需要多少錢?
有參考,花錢更有譜
新用戶專享優惠