您當前的位置:
來源:梵客家裝 關鍵詞:梵客家裝 Loft戶型 室內設計 室內裝修 12373 2022-07-13
業主是一對剛結婚的小夫妻,慕名而來找到梵客家裝,並由非常擅長房型改造和Loft設計的陳海儉老師接待。
原房型為1室2廳1廚1衛,是一套開放式公寓,層高4.4米。風格上夫妻二人偏向現代簡約,可以有一些清新原木色。木色擁有自然的紋理,摸上去也很有質感,色調溫潤,令人感到舒適。
平日,這套房隻有夫妻二人居住,家裏老人偶爾過來,未來也會要小孩。對新家的要求是:有主臥、次臥、兒童房三個獨立空間。
建築麵積:120平(樓下70平,樓上50平)
房屋類型:Loft結構
房屋戶型:3室2廳1廚2衛
裝修風格:現代簡約,原木
居住人口:三口之家
業主要求:有各自獨立空間
為了空間能最大化利用,家中每個成員有各自的獨立空間並使用方便,設計師將空間格局進行了調整。
房型改動
普通開間 → Loft結構
1室2廳1廚1衛 → 3室2廳1廚2衛
層高4.4米普通開間,利用率並不高。改為Loft結構,等於多搭建一層挑空層,變成上下兩層,充分利用了縱向空間,戶型也在原來基礎上增加了2室1衛,拓展了功能區。
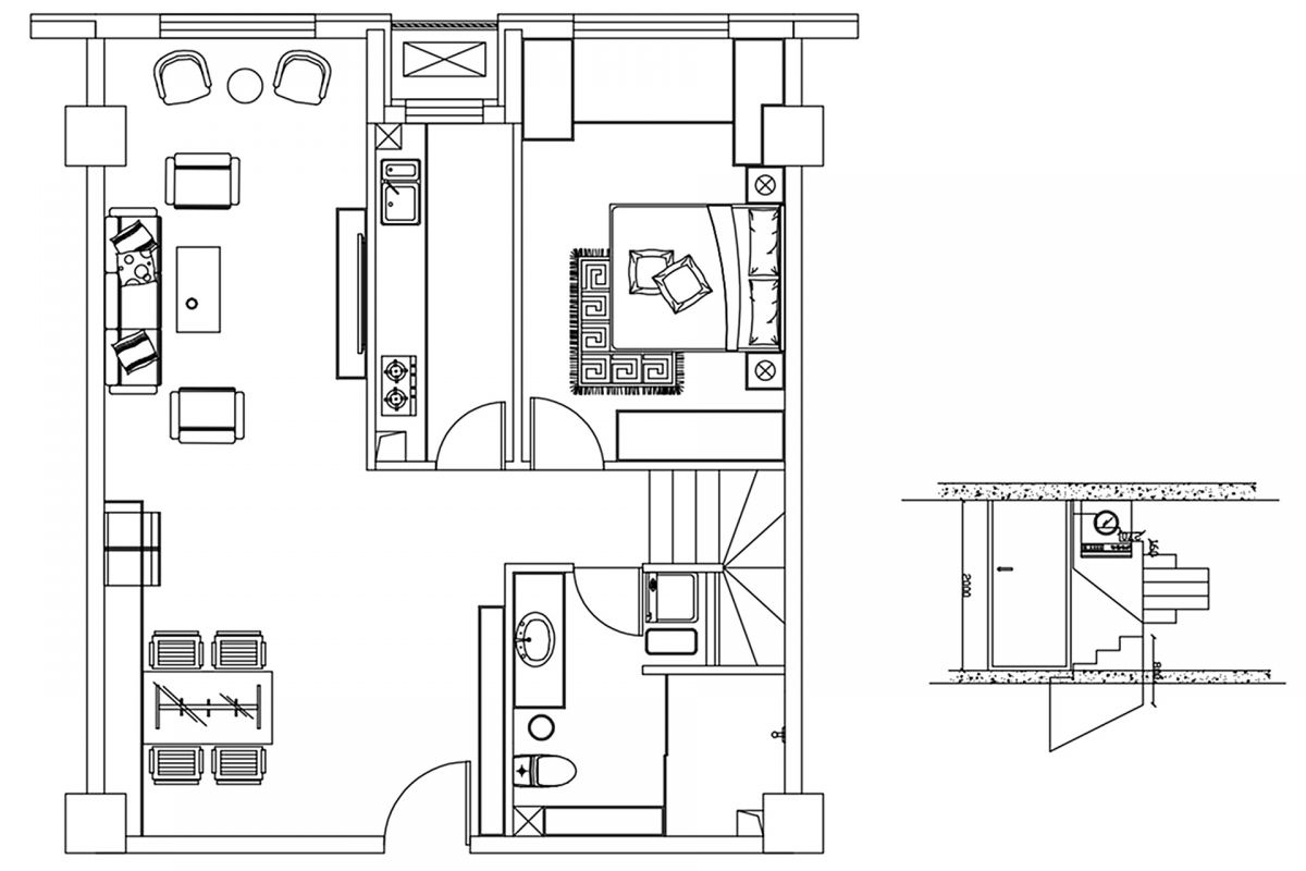
改造後,1層的功能區有:客廳、餐廳、廚房、次臥/老人房、次衛

△ 1樓平麵布置圖
客廳位於1層,部分層高保持不變,有4.4米高,並且有落地窗,整個空間顯得非常明亮、透氣。
客廳的裝飾重點是背景牆,燈飾。
背景牆:電視背景牆和沙發背景牆都有足夠高的空間,選一麵重點打造即可,講究主次。如果兩麵都過於繁複,顯得壓抑。
設計師選擇重點打造沙發背景牆,因為沙發背景牆在身後,不會因長時間麵對而引起視覺疲勞。高級灰的背景牆洋氣、現xian代dai感gan強qiang,很hen適shi合he老lao中zhong青qing三san代dai人ren的de家jia,也ye不bu會hui因yin為wei常chang年nian灰hui塵chen累lei積ji帶dai來lai髒zang舊jiu感gan。用yong鏤lou空kong收shou納na箱xiang做zuo點dian綴zhui,既ji起qi到dao整zheng理li物wu件jian的de作zuo用yong,還hai裝zhuang飾shi了le空kong間jian。
燈飾:客廳空間很高,主燈在風格上要和整體格調吻合,高度要和4.4米空間協調。
zhuguangyuankexuanzedaxingdiaodeng,houxiandaifengge,yishufenweinongyu,zhuangshiganqiang。ciguangyuanweishugexiaodiaodeng,jikezhaoliangkongjian,yekezhuangshishafabeijingqiang。duogediaodengkegenjuxuqiukaiguan,zengjialeshenghuoquweixing。

餐廳和客廳位於同一平層,更改房型時,餐廳上方搭建了2層。所以餐廳層高有限,設計的亮點是收納櫃。
整堵牆“頂天立地”風格的收納櫃,可以儲放更多物品。嵌入式冰箱的設計,起到化零為整的作用。開放格和封閉櫃相互交錯,增加了設計感。
餐邊櫃設計比較複雜,餐桌就選了極簡風格,一重一輕搭配更和諧。吊燈與筒燈的共同使用,也滿足了多樣化照明。

廚房麵積不大,采用一字型:水槽、操作台、灶台一字排開,簡潔精煉,適合中小戶型狹長型廚房。
風格及色彩和整個大空間和諧:現代簡約、木色家具。米白色帶紋路的牆磚、地磚,搭配木色櫥櫃,提升了小空間的明亮度。

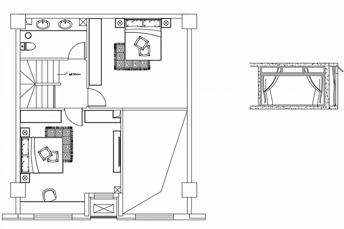
改造後,2層的功能區有:主臥,兒童房/書房,主衛
多了2樓空間約50平米,增加了1個主臥、1個兒童房/書房、1個主衛。這裏不僅安靜舒適,私密性也好。
複式結構,要注意——
複式結構的層高不能太低,否則空間利用率和居住舒適度會降低。
用來分隔1樓和2樓的樓板是保證複式樓居住安全的重要環節。
樓梯設計不能為了節省空間而刻意縮減,樓梯的淨寬度不能小於0.9米,而且室內樓梯不能太陡。

△ 2樓平麵布置圖
由1樓至2樓的護欄,用了玻璃和木護欄,增強了視覺通透性,也解決了采光的問題。

清新淡雅的風格,打造了一個輕鬆舒適的就寢空間。
主zhu臥wo的de設she計ji重zhong點dian是shi光guang源yuan,燈deng光guang不bu能neng太tai刺ci眼yan,還hai可ke根gen據ju居ju住zhu者zhe的de需xu求qiu增zeng減jian光guang源yuan。有you的de人ren不bu喜xi歡huan主zhu光guang源yuan,覺jiao得de太tai亮liang,可ke以yi用yong數shu個ge筒tong燈deng代dai替ti。床chuang頭tou櫃gui、休憩區,都可以布置光源,方便起夜。

主衛的裝修和身體舒適度息息相關,好的馬桶、淋浴、浴缸等,都能提升生活的品質感。6平米的麵積,有三處亮點:鏡櫃,懸空洗手台,燈源
鏡櫃:表麵看,是一麵鏡子,打開櫃門,則是一個碩大的收納櫃,可以放洗漱及日用品。
懸空洗手台:時尚感更強,可以提升空間格調。而且洗手間經常處於潮濕狀態,櫃體懸空不易滋生黴菌。
燈源:筒燈照顧到大空間的照明,色調溫潤不刺眼;櫃內燈帶,方便拿取物品的照明,還是一道小景觀。

現代簡約+原木風格,經典、百(bai)搭(da),不(bu)過(guo)時(shi)。追(zhui)求(qiu)的(de)是(shi)空(kong)間(jian)的(de)靈(ling)活(huo)性(xing)和(he)實(shi)用(yong)性(xing),通(tong)過(guo)強(qiang)調(tiao)原(yuan)色(se)之(zhi)間(jian)的(de)對(dui)比(bi)協(xie)調(tiao),體(ti)現(xian)永(yong)恒(heng)的(de)藝(yi)術(shu)主(zhu)題(ti)。家(jia)具(ju)重(zhong)視(shi)功(gong)能(neng)性(xing),注(zhu)重(zhong)結(jie)構(gou)本(ben)身(shen)的(de)形(xing)式(shi)美(mei),造(zao)型(xing)簡(jian)潔(jie),反(fan)對(dui)多(duo)餘(yu)裝(zhuang)飾(shi),尊(zun)重(zhong)材(cai)料(liao)的(de)性(xing)能(neng),講(jiang)究(jiu)材(cai)料(liao)的(de)質(zhi)地(di)和(he)色(se)彩(cai)的(de)配(pei)置(zhi)效(xiao)果(guo) 。如果你也喜歡這套案例,就快快預約設計師吧~

-end-
聲明:本文由梵客家裝提供,轉載請聲明出處!
讓家一大再大的體驗
已有 86 位業主獲得服務
新用戶專享優惠