您當前的位置:
來源:梵客家裝 關鍵詞:梵客家裝 格局改造 老房改造 小戶型 室內設計 室內裝修 18650 2022-07-13
這(zhe)是(shi)一(yi)個(ge)三(san)口(kou)之(zhi)家(jia),為(wei)了(le)孩(hai)子(zi)上(shang)學(xue),業(ye)主(zhu)置(zhi)換(huan)了(le)這(zhe)套(tao)學(xue)區(qu)房(fang),並(bing)通(tong)過(guo)朋(peng)友(you)介(jie)紹(shao),找(zhao)到(dao)梵(fan)客(ke)家(jia)裝(zhuang)的(de)設(she)計(ji)師(shi)白(bai)士(shi)衛(wei)老(lao)師(shi)。其(qi)實(shi)最(zui)初(chu),業(ye)主(zhu)也(ye)對(dui)比(bi)過(guo)其(qi)他(ta)裝(zhuang)修(xiu)公(gong)司(si),但(dan)是(shi)梵(fan)客(ke)的(de)服(fu)務(wu)及(ji)白(bai)老(lao)師(shi)的(de)方(fang)案(an),徹(che)底(di)打(da)動(dong)了(le)業(ye)主(zhu)…

建築麵積:90平
使用麵積:68平
房型結構:2室1廳1衛
裝修風格:現代簡約
居住人口:三口之家
業主要求:收納空間多
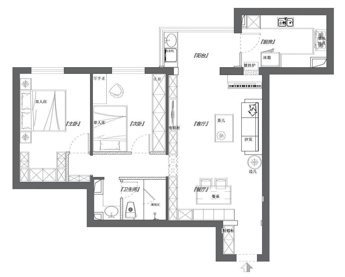
youyuxiaoquweizhishouxian,yezhudangshizaimaifangshimeiyoujingxintiaoxuanhuxing,yebulejiehuxingjiegou。zhuangxiushicaifaxianhuxingyouquexian,biruchufangmenzhiduiruhumen,shijiaobuhaoyouyingxiangketingbuju;衛生間較大,但功能不合理;臥室門正對衛生間門等。
白老師經過現場實地測量,初步確定改造方案。第一輪溝通就出了3套設計方案,初步確定改造內容。後期溝通中反複推敲細節,拿捏尺寸,最終確定施工方案。從最初見麵到定稿,一共設計了3稿,隻用了15天。

為了空間更合理地利用,規避戶型缺陷,提升使用舒適度,白老師做了如下調整,通過原始平麵圖和平麵布置圖,即可看出不同:
原始平麵圖 ↓

平麵布置圖 ↓

解決方案:
廚房門改動
次臥門改動
衛生間幹濕分離
主臥室門改動,增加衣帽間
廚房門改動:原yuan結jie構gou中zhong,入ru戶hu門men正zheng對dui廚chu房fang門men,視shi覺jiao不bu美mei觀guan,進jin入ru廚chu房fang的de動dong線xian單dan一yi且qie被bei固gu定ding,客ke廳ting布bu局ju受shou限xian,沙sha發fa和he電dian視shi的de位wei置zhi被bei迫po固gu定ding。而er且qie廚chu房fang采cai光guang受shou限xian,客ke廳ting陽yang台tai管guan線xian交jiao錯cuo,利li用yong率lv低di,變bian成cheng了le雜za物wu陽yang台tai,也ye影ying響xiang了le廚chu房fang窗chuang戶hu的de使shi用yong。通tong過guo改gai變bian廚chu房fang門men的de開kai啟qi位wei置zhi,增zeng加jia了le廚chu房fang空kong間jian的de功gong能neng性xing和he利li用yong率lv,動dong線xian的de調tiao整zheng,使shi沙sha發fa和he電dian視shi的de擺bai放fang更geng加jia合he理li,並bing極ji大da地di豐feng富fu了le客ke餐can廳ting的de收shou納na功gong能neng,客ke廳ting陽yang台tai也ye得de到dao了le更geng好hao的de利li用yong。
次臥門改動:原yuan結jie構gou中zhong,因yin次ci臥wo門men開kai啟qi的de位wei置zhi,導dao致zhi次ci臥wo的de收shou納na功gong能neng受shou限xian。次ci臥wo門men正zheng對dui衛wei生sheng間jian門men,不bu雅ya觀guan。調tiao整zheng次ci臥wo門men的de位wei置zhi後hou,次ci臥wo的de衣yi櫃gui做zuo了le整zheng麵mian牆qiang,收shou納na能neng力li直zhi接jie提ti升sheng一yi倍bei。
衛生間幹濕分離:原yuan結jie構gou中zhong,衛wei生sheng間jian的de空kong間jian相xiang對dui較jiao大da,但dan是shi功gong能neng布bu局ju不bu合he理li,洗xi手shou盆pen,坐zuo便bian,淋lin浴yu區qu,洗xi衣yi機ji擺bai放fang無wu序xu,且qie無wu幹gan濕shi分fen區qu。通tong過guo增zeng加jia牆qiang體ti隔ge斷duan,將jiang洗xi手shou盆pen獨du立li出chu來lai,作zuo為wei幹gan區qu。坐zuo便bian和he淋lin浴yu區qu之zhi間jian使shi用yong玻bo璃li隔ge斷duan,再zai次ci分fen區qu,達da到dao三san分fen離li的de劃hua分fen,在zai提ti升sheng使shi用yong率lv的de同tong時shi,也ye可ke兼jian顧gu多duo人ren同tong時shi使shi用yong的de便bian利li。
主臥室門改動,並增加衣帽間:原(yuan)結(jie)構(gou)中(zhong),過(guo)道(dao)的(de)盡(jin)頭(tou)正(zheng)對(dui)主(zhu)臥(wo)門(men),收(shou)納(na)單(dan)一(yi),衣(yi)櫃(gui)擺(bai)放(fang)過(guo)於(yu)常(chang)規(gui),從(cong)整(zheng)體(ti)上(shang)看(kan),浪(lang)費(fei)空(kong)間(jian)多(duo)。通(tong)過(guo)改(gai)變(bian)門(men)的(de)位(wei)置(zhi),調(tiao)整(zheng)結(jie)構(gou),新(xin)建(jian)牆(qiang)體(ti)也(ye)有(you)玄(xuan)關(guan)作(zuo)用(yong),緩(huan)解(jie)過(guo)道(dao)正(zheng)對(dui)臥(wo)室(shi)門(men)的(de)尷(gan)尬(ga)。主(zhu)臥(wo)內(nei)嵌(qian)衣(yi)帽(mao)間(jian),提(ti)升(sheng)收(shou)納(na)功(gong)能(neng),滿(man)足(zu)女(nv)主(zhu)需(xu)求(qiu),門(men)口(kou)處(chu)利(li)用(yong)凹(ao)槽(cao),做(zuo)薄(bo)書(shu)櫃(gui),豐(feng)富(fu)收(shou)納(na)分(fen)區(qu)。
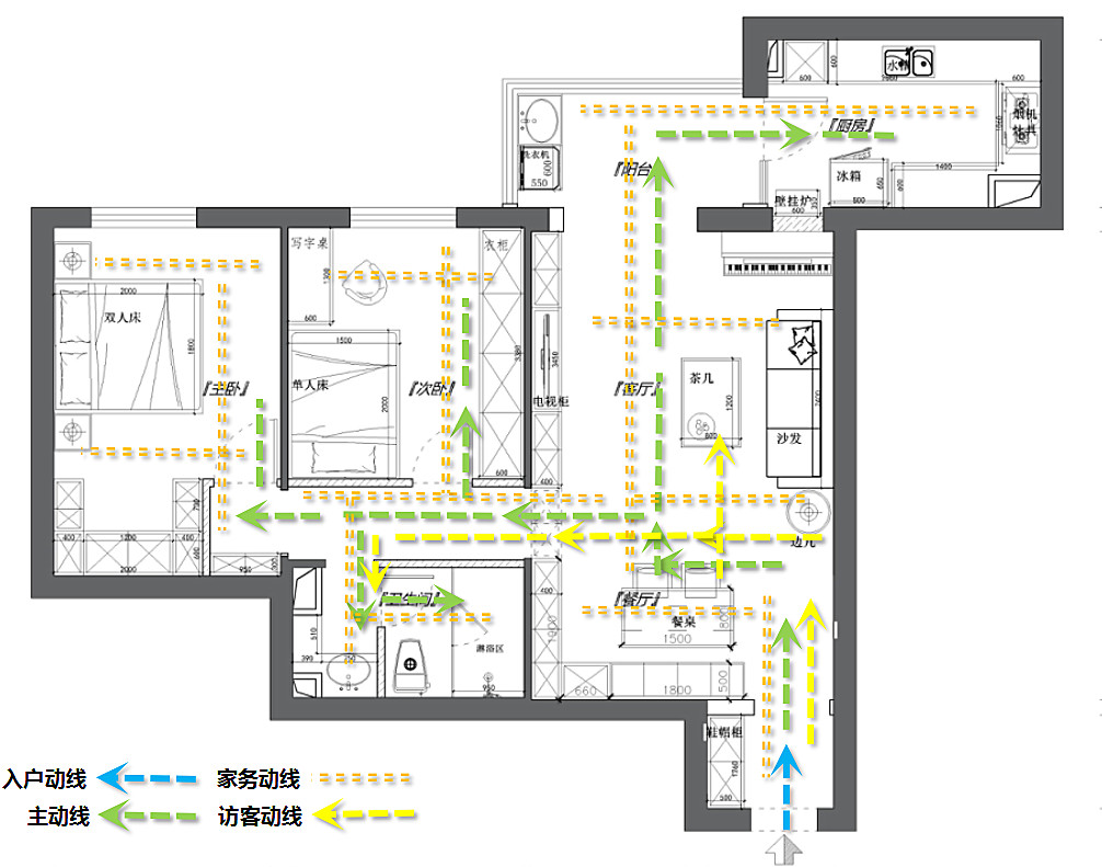
動線圖 ↓

多條動線重合處,暢通無阻礙
主動線以直線為主,轉折較少
家務動線清晰,重複區域較少
訪客動線主要集中在客廳,對家人影響小
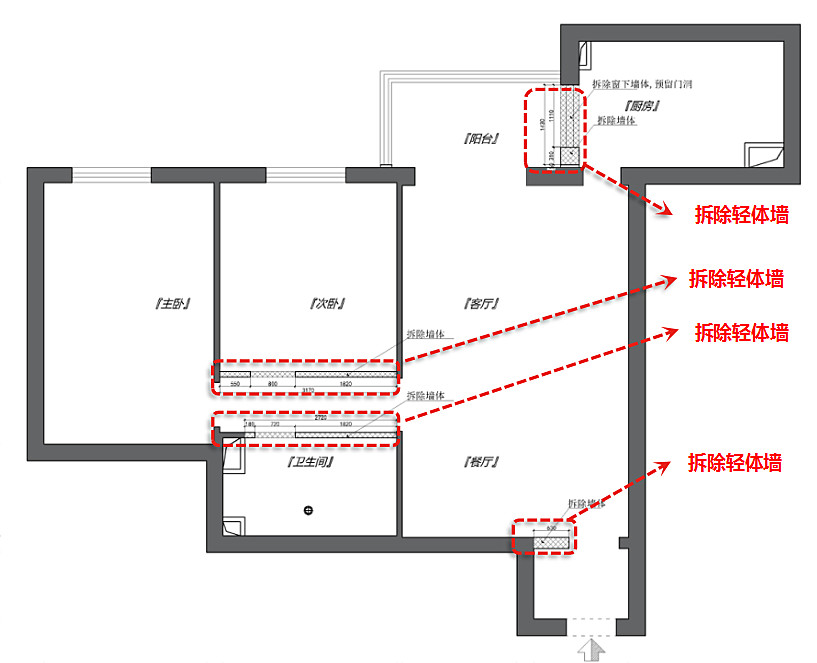
牆體拆除圖 ↓

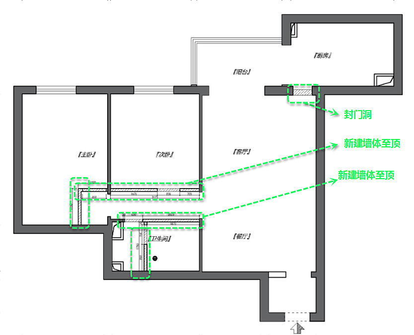
新建牆體圖 ↓

設計師最滿意:廚房、衛生間的改造
業主最滿意:衣帽間,廚房、衛生間幹濕分區的改造


↑ 衛生間三分區設計,使用更方便,彼此互不幹擾
↓ 廚房合理規劃,充分利用空間,提高烹飪效率


從開工到完工,共65個工作日,業主對裝修效果非常滿意。下麵,就為大家詳細介紹 ↓
白老師在實地測量時,總結出以下問題:
戶型結構有缺陷
空間沒有得到充分利用
設計及材料比較老舊
整體欠缺美觀度和實用性

經過3輪設計方案及15天的溝通,最終,業主選擇了梵客家裝。我們開工了!

拆(chai)除(chu)時(shi),要(yao)先(xian)斷(duan)開(kai)電(dian)路(lu),用(yong)臨(lin)時(shi)施(shi)工(gong)電(dian)箱(xiang)。保(bao)護(hu)好(hao)燃(ran)氣(qi)表(biao),關(guan)閉(bi)用(yong)氣(qi)總(zong)閥(fa)門(men),檢(jian)查(zha)是(shi)否(fou)有(you)漏(lou)氣(qi)現(xian)象(xiang)。注(zhu)意(yi)用(yong)水(shui),防(fang)止(zhi)水(shui)滲(shen)到(dao)樓(lou)下(xia)。嚴(yan)禁(jin)拆(chai)除(chu)涉(she)及(ji)安(an)全(quan)的(de)結(jie)構(gou)牆(qiang)體(ti)。拆(chai)除(chu)的(de)垃(la)圾(ji)要(yao)堆(dui)放(fang)整(zheng)齊(qi),時(shi)刻(ke)保(bao)證(zheng)工(gong)地(di)整(zheng)潔(jie)。

水(shui)電(dian)施(shi)工(gong)階(jie)段(duan),走(zou)線(xian)要(yao)遵(zun)循(xun)橫(heng)平(ping)豎(shu)直(zhi)的(de)規(gui)範(fan),排(pai)列(lie)整(zheng)齊(qi),紅(hong)色(se)強(qiang)電(dian),藍(lan)色(se)弱(ruo)電(dian)。交(jiao)叉(cha)處(chu)用(yong)錫(xi)箔(bo)紙(zhi)纏(chan)繞(rao)隔(ge)開(kai),避(bi)免(mian)幹(gan)擾(rao)。確(que)保(bao)電(dian)上(shang)水(shui)下(xia),嚴(yan)禁(jin)水(shui)電(dian)同(tong)槽(cao)。線(xian)頭(tou)必(bi)須(xu)包(bao)頭(tou)打(da)卷(juan)。

ciwomengaidongshi,xuyaoxinjianqiangti。kaolvdaochengzhongwenti,yibanxinjianqiangtijianyizuoqingzhigeqiang,yongbijiaoqingzhidecailiao。xinjianqiangtiwaicezaimoshuiniqianyaojiaguatiesiwang,yizengjiaqiangtihewaimiantiecizhuandewenguxing,bimianxinjianqingtiqiangchuxiankailie、抹灰層出現脫落等現象。
地暖管安裝要根據不同房間的保溫、散熱狀況、房間功能、家具擺放、地麵鋪材選擇、熱源可調節等狀況,有針對性地進行地板采暖係統設計。建議選擇性能優異的管材和保溫材料,保溫效果好有助於節能。

鋪地磚時,邊鋪貼邊用水平儀或靠尺找平檢查,發現問題及時修正;。磚麵上溢出水泥砂漿用抹布擦淨。勾縫時不能遺漏。 鋪貼牆磚時,自下而上進行整,必須當天完 成,或者將接頭處留在轉角處。磚的最下麵一層應留到地磚鋪貼完成後,再補貼。
還要注意,空鼓率、平整度、垂直度、陰陽角、接縫等都是貼磚驗收的重點。鋪完地磚,工人要做美縫處理,表麵會光滑如瓷,視覺感更好,而且不易藏汙納垢。

牆麵施工非常重要,要經過牆麵基層處理、塗布一遍環保牆固、批刮一遍底層石膏基、粘貼牆麵專用抗裂網格、批刮兩遍膩子粉、塗布一遍底漆、塗布兩遍麵漆七大步驟。乳膠漆塗刷完之後4個小時就會幹燥,但幹燥的漆膜還沒有達到一定的硬度,這就要養護,7-10天之內不要有擦洗或任何接觸牆麵的行為。

家jia裏li東dong西xi比bi較jiao多duo,需xu要yao分fen門men別bie類lei做zuo收shou納na,才cai能neng整zheng齊qi有you序xu。定ding製zhi家jia具ju因yin人ren而er異yi的de內nei部bu細xi分fen,更geng能neng滿man足zu業ye主zhu的de需xu求qiu,還hai能neng充chong分fen利li用yong尷gan尬ga角jiao落luo,將jiang空kong間jian利li用yong做zuo到dao最zui大da化hua。
玄關櫃、電視背景牆、餐邊櫃、衣櫃等,都設計了定製家具,大大提升了儲物能力,讓小家煥然一新。最後,一起看看裝修成果吧~
↑ 玄關櫃,小區域大作用。這裏不僅有掛衣處、衣yi帽mao鏡jing,還hai有you鞋xie凳deng,換huan鞋xie的de時shi候hou可ke以yi坐zuo在zai這zhe裏li。櫃gui體ti中zhong間jian的de鏤lou空kong設she計ji,放fang進jin出chu門men隨sui手shou物wu品pin。櫃gui子zi下xia方fang留liu空kong處chu,為wei每mei天tian要yao換huan的de鞋xie預yu留liu了le空kong位wei,而er且qie方fang便bian清qing潔jie打da掃sao。
↑ 客廳,收納櫃與電視背景牆結合,將儲物做到極致。抽屜以及不同大小的櫃子,方便各類物品的存放。嵌入式空調的設計,更整體統一 ,提升空間整潔度。
↑ 餐廳,利用兩堵牆打造的L型餐邊櫃,大大延伸儲物功能。卡座設計,現代、時尚,有一種小資情調,提升餐廳的浪漫情懷。卡座下方還能存放物品,再次強化收納功能。
↑ 次臥,頂天立地的衣櫃設計,整體又美觀,每寸空間都不浪費。沒有縫隙,不易藏汙納垢,打理也很方便。
↑ 廚房,依據空間布局設計的U型櫥櫃,擁有獨立備餐空間,洗滌、備餐、烹飪一氣嗬成,下廚高效便捷。吊櫃與地櫃雙向收納,大大擴充了儲物功能。
↑ 陽台,被規劃為洗衣區,嵌入式洗衣機、洗手台、收納櫃一體化設計,整體又美觀,洗晾衣服也更方便。
戶型不合理怎麼破?有梵客專業設計師為你支招,報名預約設計師,為您量身定製裝修方案,打造高品質的舒適家。

-end-
聲明:本文由梵客家裝提供,轉載請聲明出處!
讓家一大再大的體驗
已有 86 位業主獲得服務
新用戶專享優惠