您當前的位置:
來源:梵客家裝 關鍵詞:梵客家裝 新中式 室內設計 室內裝修 17823 2022-07-13
xinzhongshifenggedanshengyuzhongguochuantongwenhuafuxingdexinshiqi,shijiangzhongshiyuansuyuxiandaicaizhiqiaomiaojianrou,juyouhanxumei,tixianzhongguofeng。zhezhongfenggejichenglemingqingshiqijiajuliniandejinghua,jiangqizhongdejingdianyuansutilianbingjiayifengfu,geichuantongjiajuwenhuazhuruxinqixi。
新中式風格以中國傳統古典文化作為背景,紅木、青花瓷、紫砂茶壺及一些紅木工藝品等都體現了濃鬱的東方之美。裝飾材料會選絲、紗、織物、壁紙、玻璃、仿古瓷磚、大理石等。飾品多為瓷器、陶藝、中式窗花、字畫、布藝以及具有一定含義的中式古典物品等。
新中式風格非常講究空間的層次感,在需要隔絕視線的地方,使用中式的屏風或窗欞、中式木門、工藝隔斷、簡約化的中式“博古架”,展現出中式家居的層次之美。
xinzhongshifenggedejiajudapeiyigudianjiajuhuoxiandaijiajuyugudianjiajuxiangjiehe,zhongguogudianjiajuyimingqingjiajuweidaibiao,zaixinzhongshifenggejiajupeishishangduoyixiantiaojianliandemingshijiajuweizhu,bijiaojianyue。
業主是一對中年夫婦,平日工作忙碌,希望回到家能享受恬靜安逸的舒適生活。梵客家裝的設計師王茜根據業主的需求,將品質、舒適、輕奢等設計元素融入到整個空間,為業主打造了一個新中式風格的溫馨居所。
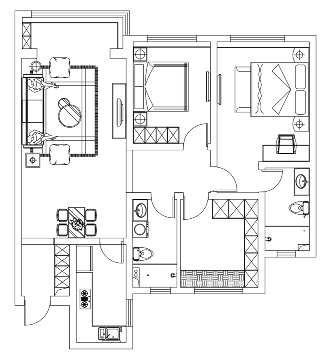
建築麵積:110平米
裝修風格:新中式
房屋戶型:3室2廳1廚2衛
居住人口:二人世界
這是一套3室2廳1廚2衛的新房,房型基本空間格局比較規整,動靜空間(客廳、臥室)劃分合理,結構上沒有做改變。
配色上主要選擇暖灰色和深褐色,體現莊重與優雅的格調,這兩種色彩濃厚成熟,可以增加空間的溫馨感和穩重感。
原始平麵圖

平麵布置圖

客ke廳ting的de整zheng個ge空kong間jian色se彩cai典dian雅ya華hua貴gui,再zai加jia入ru一yi些xie現xian代dai元yuan素su,呈cheng現xian時shi尚shang品pin位wei。客ke廳ting采cai用yong暖nuan色se係xi來lai打da造zao,主zhu色se調tiao為wei米mi色se,棕zong色se色se來lai過guo度du,局ju部bu亮liang色se點dian綴zhui。

客廳區域不是太大,在家具的選擇上以簡約線條感的家具為主,這樣能使空間看起來更加通透寬闊。

電(dian)視(shi)背(bei)景(jing)牆(qiang)用(yong)木(mu)質(zhi)的(de)簡(jian)約(yue)線(xian)條(tiao)做(zuo)出(chu)符(fu)合(he)主(zhu)題(ti)的(de)幾(ji)何(he)結(jie)構(gou),空(kong)間(jian)裝(zhuang)飾(shi)多(duo)采(cai)用(yong)硬(ying)朗(lang)的(de)直(zhi)線(xian)條(tiao),頂(ding)麵(mian)造(zao)型(xing)也(ye)以(yi)木(mu)線(xian)條(tiao)來(lai)裝(zhuang)飾(shi),與(yu)整(zheng)體(ti)和(he)諧(xie)統(tong)一(yi)。
配飾趨於簡潔,並沒有很多華麗的裝飾。精巧的燈飾、雅致的掛畫使整個居室在古韻情懷中滲透著現代氣息。

客廳、餐廳在一個大空間,在設計的時候,設計師就考慮要用一個木質屏風的形式將功能空做一個劃分。
體現新中式風格有四大元素:中式氛圍,中式書房,中式圈椅,佛頭。
餐廳的設計,就是選了具有新中式代表性的深木色圈椅,再搭配簡約線條燈飾,在滿足大空間風格的前提下,力求時尚簡約、輕奢溫暖,使整個空間個性十足。

整個空間以輕奢、休閑為主,是卸下疲憊之後的休憩之所,即便是陽台小空間也要充分呈現出一種輕鬆、閑適。
休(xiu)閑(xian)陽(yang)台(tai),色(se)彩(cai)搭(da)配(pei)上(shang)讓(rang)空(kong)間(jian)的(de)寂(ji)靜(jing)感(gan)表(biao)現(xian)的(de)更(geng)為(wei)強(qiang)烈(lie),地(di)麵(mian)和(he)頂(ding)麵(mian)用(yong)一(yi)樣(yang)的(de)木(mu)色(se),整(zheng)體(ti)和(he)諧(xie)。雅(ya)座(zuo)榻(ta)榻(ta)米(mi),有(you)格(ge)調(tiao)生(sheng)活(huo)的(de)品(pin)質(zhi)感(gan),也(ye)是(shi)慵(yong)懶(lan)情(qing)懷(huai)的(de)體(ti)現(xian)。
業(ye)主(zhu)有(you)很(hen)多(duo)收(shou)藏(zang)品(pin),於(yu)是(shi)專(zhuan)門(men)打(da)造(zao)了(le)一(yi)個(ge)博(bo)古(gu)架(jia),既(ji)能(neng)將(jiang)業(ye)主(zhu)的(de)心(xin)好(hao)之(zhi)物(wu)陳(chen)列(lie)展(zhan)示(shi),也(ye)能(neng)美(mei)化(hua)空(kong)間(jian),使(shi)生(sheng)活(huo)的(de)實(shi)用(yong)性(xing)和(he)對(dui)傳(chuan)統(tong)文(wen)化(hua)的(de)追(zhui)求(qiu)同(tong)時(shi)得(de)到(dao)了(le)滿(man)足(zu)。

主(zhu)臥(wo)的(de)設(she)計(ji)主(zhu)要(yao)是(shi)圍(wei)繞(rao)著(zhe)都(dou)市(shi)風(feng)尚(shang),整(zheng)個(ge)空(kong)間(jian)凸(tu)顯(xian)品(pin)位(wei)與(yu)現(xian)代(dai)感(gan),飾(shi)物(wu)的(de)造(zao)型(xing)幹(gan)淨(jing)利(li)落(luo),灰(hui)色(se)調(tiao)高(gao)貴(gui)雅(ya)致(zhi),深(shen)淺(qian)不(bu)一(yi)的(de)抱(bao)枕(zhen)增(zeng)加(jia)了(le)空(kong)間(jian)層(ceng)次(ci)感(gan)。整(zheng)個(ge)臥(wo)室(shi)都(dou)顯(xian)得(de)柔(rou)軟(ruan)舒(shu)適(shi)。

當然,打造一個新中式風格的家,不僅要對傳統文化諳熟於心,還要對現代風格有所了解,才能更好的將二者融為一體。

-end-
聲明:本文由梵客家裝提供,轉載請聲明出處!
讓家一大再大的體驗
已有 86 位業主獲得服務
新用戶專享優惠